台北 109專技解題分享會


建築相關國家考試、建築師考試準備、心得及經驗分享。

台北 109專技解題分享會

文章陳明城 » 2020 11月 25 (週三) 1:13 pm



贊助商連結

放築塾--建築師考試新搖籃
台北
109專技解題分享會
結構
設計 敷地
*設計 解題圖說
今明或PO上
請密切注意。

加入建築人討論區粉絲團
附加檔案
S__94642228.jpg
時間 地點
頭像
陳明城
 
文章: 3245
註冊時間: 2009 2月 21 (週六) 8:04 pm
來自: 板橋‧府中

台北 109專技 結構 設計 敷地 解題分享會

文章陳明城 » 2020 11月 26 (週四) 9:49 am

放築塾--建築師考試新搖籃
記得報名來聽高修老師的結構解答:
設計、敷地 解題分享會
對像我這種〈微積分白癡〉,聽說最棒的是:
只須會算術+簡單邏輯推論_就可學好靜不定的「傾角變位法」,可解計算題,可算出選擇題答案!
不必用到〈微積分〉,就能學好「傾角變位法」!
不必用到〈微積分〉,就能學好「傾角變位法」!
不必用到〈微積分〉,就能學好「傾角變位法」!
(因為很重要!所以要講三次!)
放築塾台北[建築結構課程]_星期一晚上19.00~
推薦 高修老師[建築結構課程]
課程特色:
1.正確結構觀念的傳達。
2.淺顯易懂的步驟引導。
3.建築師考題指導解析。
課程心得:
高修老師在教授解題過程時,
能夠清楚的指導解題步驟,
不會跳步驟讓同學霧裡看花,
過程中有問題可以隨時提出來討論,
在課堂中把整體結構觀念徹底弄懂,
針對重點常考單元,
高老師會製作補充講義,
幫助同學更詳細的了解解題方法,
課程末的歷年考題解說,
也有助於讓同學對課程的學習內容,
再一次的與考題連結,
加深同學的解題觀念。
綜觀97年後的結構考題,
基本的歷年考題練習,
是同學在課堂學會觀念後,
課後必須自我累積的過程,
若能把歷年考題熟練清楚,
[及格]這兩個字是下功夫累積獲得的!
附註:高修老師的線上教學服務:
結構課後遇到問題也可用Line群組提問討論。
學員大可不必擔心找不到老師可以問。
新科建築師 黃信銘 106/2/19
~~~~~~~~~
感謝「放築塾」張羅開設結構班課程
陳老師,您好:
原來預劃要自己准備剩下的結構科,
因緣際會得知「放築塾」開結構課,
並從第一堂課老師篤定會教授傾角變位法時,
讓我決定棄以前的計算觀念,
重新打底。
高修老師從基本觀念的建立,
到學校沒教的靜不定的傾角變位法,
搭配歐陽老師針對建築師考試編著的教材,
深入淺出,精簡的心法,夠用。
課堂中隨時發問,即時解惑;
課後可與老師、同學間討論,
是炒大鍋飯課程無法提供的環境。
感覺像是基礎班+特輔衝刺班。
在20堂課的歷鍊,
讓我在考場連選擇題都可以在題目卷將解題過程一步步寫出,
確實的解出答案。
雖然成績沒有很高分,
與以往的結構成績比較,
提昇不少空間。
感謝陳老師四處奔波開設此班,
也感謝高老師的耐心指導。
讓我在敷地、設計好不容易及格的當下,
專心准備剩下的結構。
祝 教安
新科建築師
學員 顧智超2017/02/25
--
高修老師 (專技高考結構技師)
師資介紹:
1.台灣大學土木工程研究所結構工程組畢業
2.專技高考結構工程技師榜眼
3.顧問公司專任工程師
4.補習班專任力學老師
授課用書:
『解說建築結構』,歐陽,文笙出版
授課大綱:
一、概論
1.建築結構學在幹嘛
2.力平衡其實很簡單
3.國中程度的數學複習
4.結構物與地球的連接--支承
二、靜定桁架
1.只受軸力的構件
2.桿件變形與正向應力的計算
3.各種分析靜定桁架的方法
三、靜定樑與靜定鋼架
1.主要受彎矩與剪力的構件
2.剪力圖彎矩圖
3.構件與構件間的連接--接合
4.鋼架分析不過是把樑接合在一起
四、穩定與靜不定判別
1.穩定判別
2.靜不定度判別
五、樑基本變形
1.樑受力後的撓度計算
2.只受到彎矩的梁也會有正向應力--撓曲正向應力的計算
六、組合結構問題
組合結構各構件的力學行為
七、傾角變位法
1.什麼是位法
2.勁度的定義
3.傾角變位方程式
4.不過是解聯立方程式罷了
八、挫屈問題
1.挫屈是什麼
2.彈性桿的挫屈
3.有效長度
九、其他題型
1.地震工程
2.隔震的行為
3.鋼筋混凝凝土行為
4.鋼結構行為
5.土壤與基礎
以上共計9單元,授課20堂。
頭像
陳明城
 
文章: 3245
註冊時間: 2009 2月 21 (週六) 8:04 pm
來自: 板橋‧府中

Re: 台北 109專技解題分享會

文章陳明城 » 2020 11月 26 (週四) 6:59 pm

陸續看了一些寄我的操作。
發現不是在事務所待久的老鳥就真能應付這題。

台北
109專技解題分享會
結構
設計 敷地
附加檔案
S__94642228.jpg
分享會
降階A4_考場發放DM_2020112.jpg
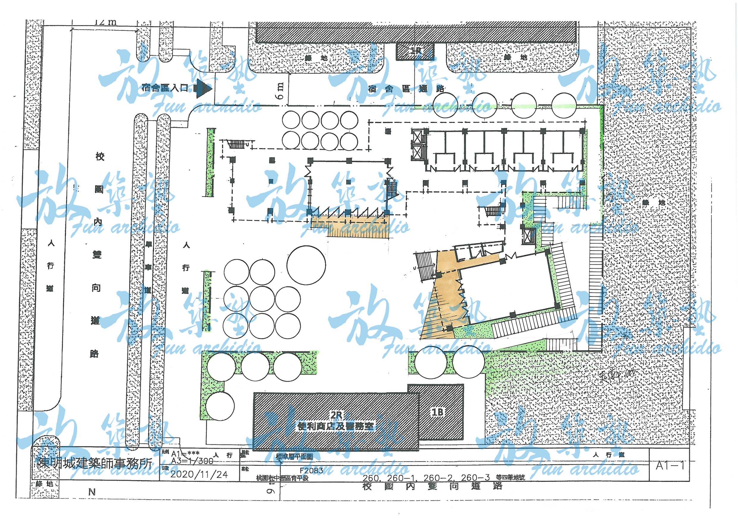
敷地
螢幕快照 2020-11-26 下午6.37.41.png
單元平面+透視
SITE-8-3拷貝.jpg
配置
頭像
陳明城
 
文章: 3245
註冊時間: 2009 2月 21 (週六) 8:04 pm
來自: 板橋‧府中

Re: 台北 109專技解題分享會

文章陳明城 » 2020 11月 27 (週五) 10:32 pm

學員筆記 107年結構76分上榜。

#建築師考試
#建築計畫
#建築設計
#建築設計與計畫
#敷地
#敷地計畫與都市設計
#建築法規
#建築結構
#建築公務高考三級
附加檔案
107年度放築塾結構課堂筆記_頁面_39拷貝.jpg
筆記2
107年度放築塾結構課堂筆記_頁面_22拷貝.jpg
筆記1
頭像
陳明城
 
文章: 3245
註冊時間: 2009 2月 21 (週六) 8:04 pm
來自: 板橋‧府中

結構 福音

文章陳明城 » 2020 11月 28 (週六) 10:40 am

感謝「放築塾」張羅開設結構班課程
陳老師,您好:
原來預劃要自己准備剩下的結構科,
因緣際會得知「放築塾」開結構課,
並從第一堂課老師篤定會教授傾角變位法時,
讓我決定棄以前的計算觀念,
重新打底。
高修老師從基本觀念的建立,
到學校沒教的靜不定的傾角變位法,
搭配歐陽老師針對建築師考試編著的教材,
深入淺出,精簡的心法,夠用。
課堂中隨時發問,即時解惑;
課後可與老師、同學間討論,
是炒大鍋飯課程無法提供的環境。
感覺像是基礎班+特輔衝刺班。
在20堂課的歷鍊,
讓我在考場連選擇題都可以在題目卷將解題過程一步步寫出,
確實的解出答案。
雖然成績沒有很高分,
與以往的結構成績比較,
提昇不少空間。
感謝陳老師四處奔波開設此班,
也感謝高老師的耐心指導。
讓我在敷地、設計好不容易及格的當下,
專心准備剩下的結構。
祝 教安
新科建築師
學員 顧O超2017/02/25

#建築師考試
#建築計畫
#建築設計
#建築設計與計畫
#敷地
#敷地計畫與都市設計
#建築法規
#建築結構
#建築公務高考三級
附加檔案
122104.jpg
解題
頭像
陳明城
 
文章: 3245
註冊時間: 2009 2月 21 (週六) 8:04 pm
來自: 板橋‧府中


回到 建築考試


cron