109專技建築師 設計


建築相關國家考試、建築師考試準備、心得及經驗分享。

109專技建築師 設計

文章陳明城 » 2020 11月 24 (週二) 11:06 am



贊助商連結

109專技建築師 設計
今年這麼實際的題目
對在事務所工作的考生非常有利!
但對明年考設計的考生就更困難了!
1.得準備歷年的題型。
2.又得準備這麼實際的題型(還是對在事務所工作的老鳥有利--上班就在準備這題型的設計)。
還是老話:

建議及早就 戰鬥位置。
尤其 設計、敷地 2科術科
與學科不同,首重正確的觀念!
而觀念是需要
理解
醞釀
發酵
沉澱
提煉
...
如香醇的酒,需要時間的錘鍊。
放築塾幫助過許多優秀建築師!
當然也能幫助你。
加油~
#建築師考試
#建築計畫
#建築設計 #建築設計與計畫
#敷地 #敷地計畫與都市設計
#建築法規
#建築結構 #建築公務高考三級

加入建築人討論區粉絲團
附加檔案
109180_80160_頁面_3.jpg
題目3
109180_80160_頁面_2.jpg
題目2
109180_80160_頁面_1.jpg
題目
頭像
陳明城
 
文章: 3245
註冊時間: 2009 2月 21 (週六) 8:04 pm
來自: 板橋‧府中

Re: 109專技建築師 設計

文章陳明城 » 2020 11月 30 (週一) 12:43 pm

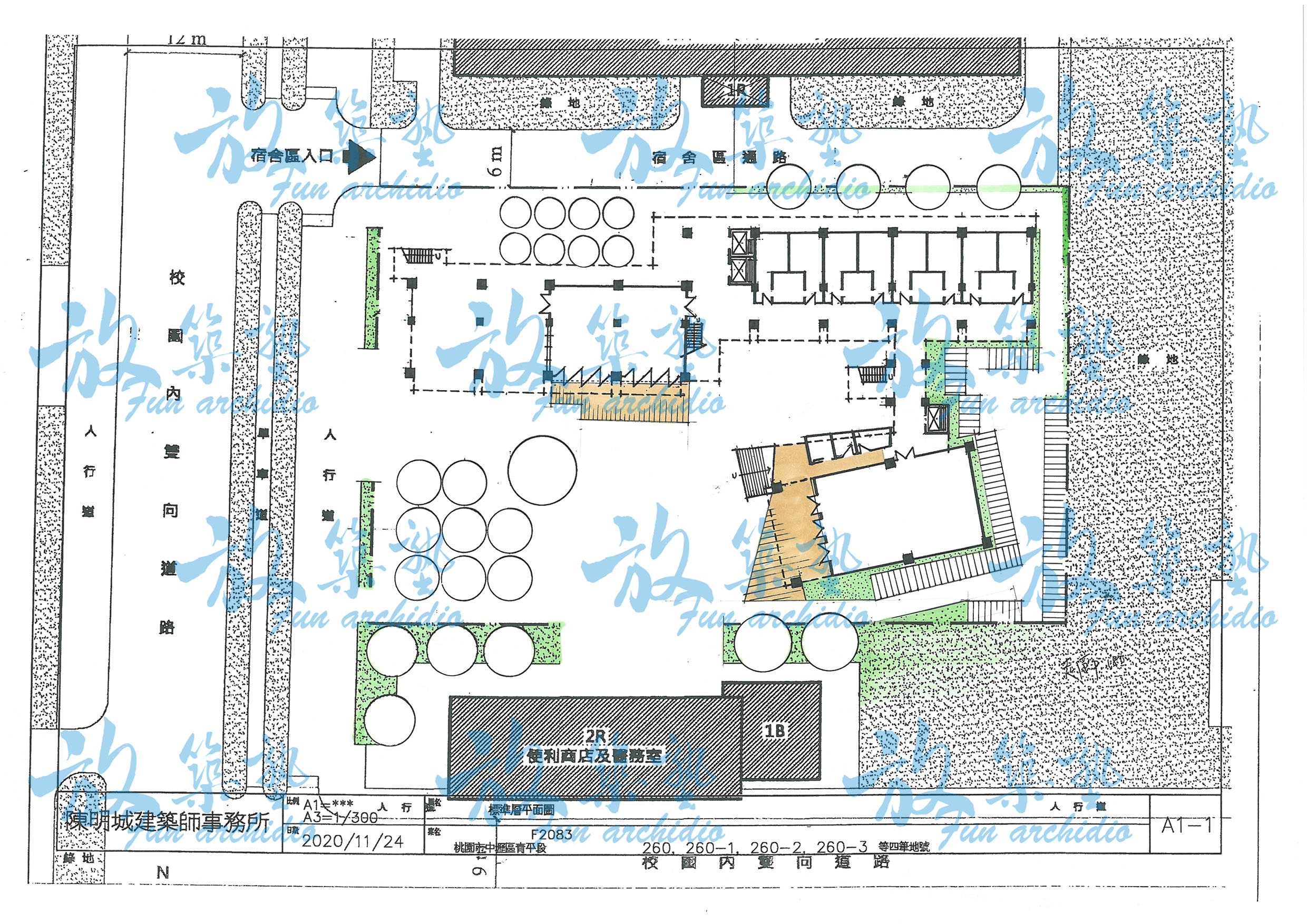
我的看法:
檢視今年多位考生的設計(即有些老師解題)操作後,
我認為
1.若給1/4基地,要求50床位,同樣要求尺寸、大樣等。
事務所老鳥約可及格--80%上下。
但因給大基地,且西南角有需對應的小7+醫務室。
這已先需處理《配置》,因此事務所老鳥約可及格--25%上下。
2.某些年度菜鳥考生頗有些人設計一試及格。
今年大學剛畢業考生,希望設計及格的機會很低很低...。
附加檔案
SITE-8-3拷貝.jpg
配置
下載 (1).jpg
大學宿舍休憩空間
下載 (1).jpg (7.38 KiB) 被瀏覽 47237 次
下載 (2).jpg
大學宿舍
下載 (2).jpg (7.22 KiB) 被瀏覽 47237 次
頭像
陳明城
 
文章: 3245
註冊時間: 2009 2月 21 (週六) 8:04 pm
來自: 板橋‧府中


回到 建築考試


cron