如何〝玩〞到建築師執照!


建築相關國家考試、建築師考試準備、心得及經驗分享。

如何〝玩〞到建築師執照!

文章陳明城 » 2020 11月 28 (週六) 11:30 am



贊助商連結

放築塾--建築師考試新搖籃
如何〝玩〞到建築師執照!
放築塾連幾年
曾住宿
承億輕旅
Uij
妳(你)分得出
民宿
大學學生宿舍嗎?
請輕鬆跟隨放築塾
〝玩〞出建築師執照!
#建築師考試
#建築計畫
#建築設計
#建築設計與計畫
#敷地
#敷地計畫與都市設計
#建築法規
#建築結構
#建築公務高考三級

加入建築人討論區粉絲團
附加檔案
126953205_10214621806537540_7415289712613555814_n.jpg
玩到建築師執照
images (1).jpg
大學休閒空間
images (1).jpg (10.56 KiB) 被瀏覽 104129 次
下載 (3).jpg
大學
下載 (3).jpg (7.64 KiB) 被瀏覽 104129 次
下載 (4).jpg
大學宿舍
下載 (4).jpg (6.98 KiB) 被瀏覽 104129 次
00870266.jpg
休閒空間
降階擷取uij.PNG
起居空間
降階擷取uij.PNG (570.75 KiB) 被瀏覽 104129 次
頭像
陳明城
 
文章: 3245
註冊時間: 2009 2月 21 (週六) 8:04 pm
來自: 板橋‧府中

Re: 如何〝玩〞到建築師執照!

文章陳明城 » 2020 11月 28 (週六) 12:23 pm

〝玩〞足了!
也〝準備〞足了!
小考小玩!
大考大玩~
附加檔案
降降降7631667D-794E-4B17-BC9B-8778D322CD9A.jpg
降降降7631667D-794E-4B17-BC9B-8778D322CD9A.jpg (78.82 KiB) 被瀏覽 104127 次
頭像
陳明城
 
文章: 3245
註冊時間: 2009 2月 21 (週六) 8:04 pm
來自: 板橋‧府中

Re: 如何〝玩〞到建築師執照!

文章陳明城 » 2020 11月 28 (週六) 11:50 pm

那年台南登革熱嚴重,
臨時借承億輕旅大廳論劍評圖。
附加檔案
12279008_10203968362008085_4879585511673114992_n.jpg
承億輕旅
頭像
陳明城
 
文章: 3245
註冊時間: 2009 2月 21 (週六) 8:04 pm
來自: 板橋‧府中

如何〝玩〞到建築師執照!--早鳥先飛~

文章陳明城 » 2020 11月 29 (週日) 2:12 pm

設計這題單純
降龍18掌打3招,一躹躬下台。
領賞、喝酒去了!

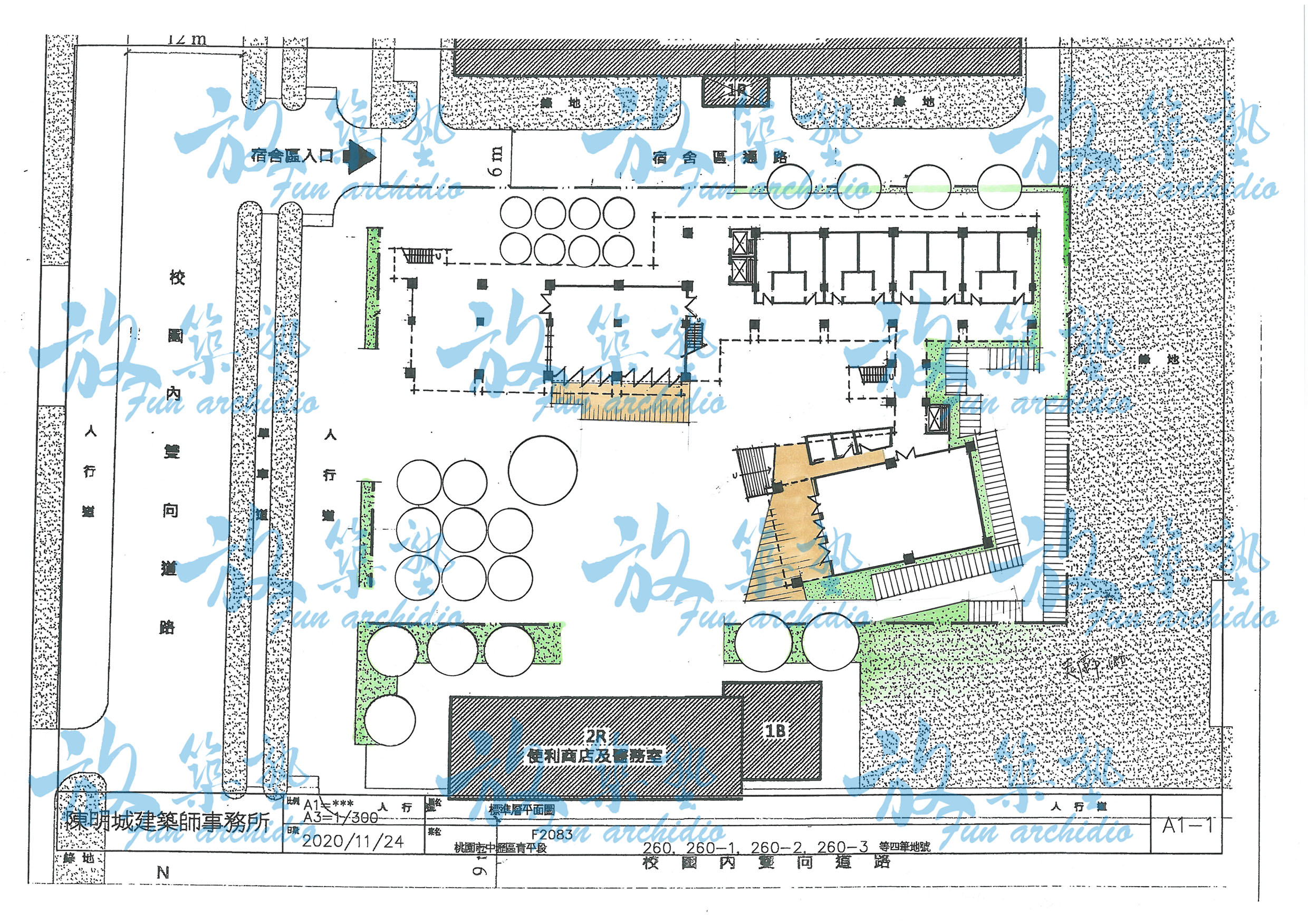
*但因基地算大,配置放有需回應的小7+醫務室,事務所老鳥不見得真佔優勢;
至於剛畢業的學生,更是不易。
**小結論:
能過的事務所老鳥--得早點準備敷地。
(除非前幾年已過敷地,否則今年敷地對事務所老鳥相當不易。)
剛畢業的菜鳥,則建議早準備設、敷。
附加檔案
110架構早鳥.jpg
早鳥課程
SITE-8-3拷貝.jpg
109設計解題。
頭像
陳明城
 
文章: 3245
註冊時間: 2009 2月 21 (週六) 8:04 pm
來自: 板橋‧府中


回到 建築考試


cron