請問關於天井的法規!青埔高鐵地區


一般民眾詢問建築問題的平台;有關你房子的大小疑問,都可以在這裡討論。(2010.2.22開版)

請問關於天井的法規!青埔高鐵地區

文章macross730130 » 2018 5月 20 (週日) 6:17 pm



贊助商連結

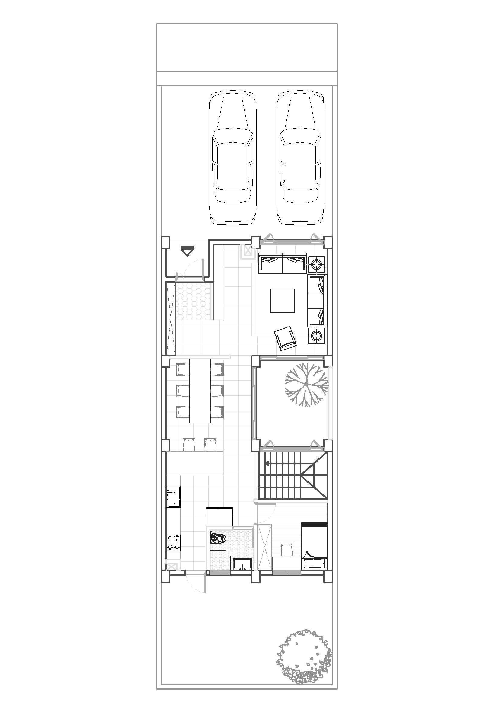
想請問在青埔地區住宅用地,天井大小2.7X3.9M
是否需要計入容積率和建蔽率?相關法規有查閱過了還是不太清楚!
還煩請各位大大解惑一番!感謝~附圖

加入建築人討論區粉絲團
附加檔案
0520-01.jpg
macross730130
 
文章: 1
註冊時間: 2018 5月 20 (週日) 6:09 pm

回到 建築諮詢


cron