早鳥早飛


建築相關國家考試、建築師考試準備、心得及經驗分享。

早鳥早飛

文章陳明城 » 2020 11月 30 (週一) 1:18 pm



贊助商連結

110年架構課程_早鳥先飛
報名請填表單
https://forms.gle/MvXv5seua96pqRt29

【架構課】

心法--內功,導正觀念

建構正確的input〈garbage in garbage out〉

觀念若不正確,徒勞無功

底蘊不足,趕緊加入練功

加入建築人討論區粉絲團
附加檔案
123720364_206307167525660_1105948497146120606_o.jpg
課表
A4_考場發放DM_202011.jpg
A4_考場發放DM_202011.jpg (80.96 KiB) 被瀏覽 50426 次
no6530 (1).jpg
學員心得
頭像
陳明城
 
文章: 3245
註冊時間: 2009 2月 21 (週六) 8:04 pm
來自: 板橋‧府中

109專技建築師 設計 試解

文章陳明城 » 2020 12月 02 (週三) 1:02 pm

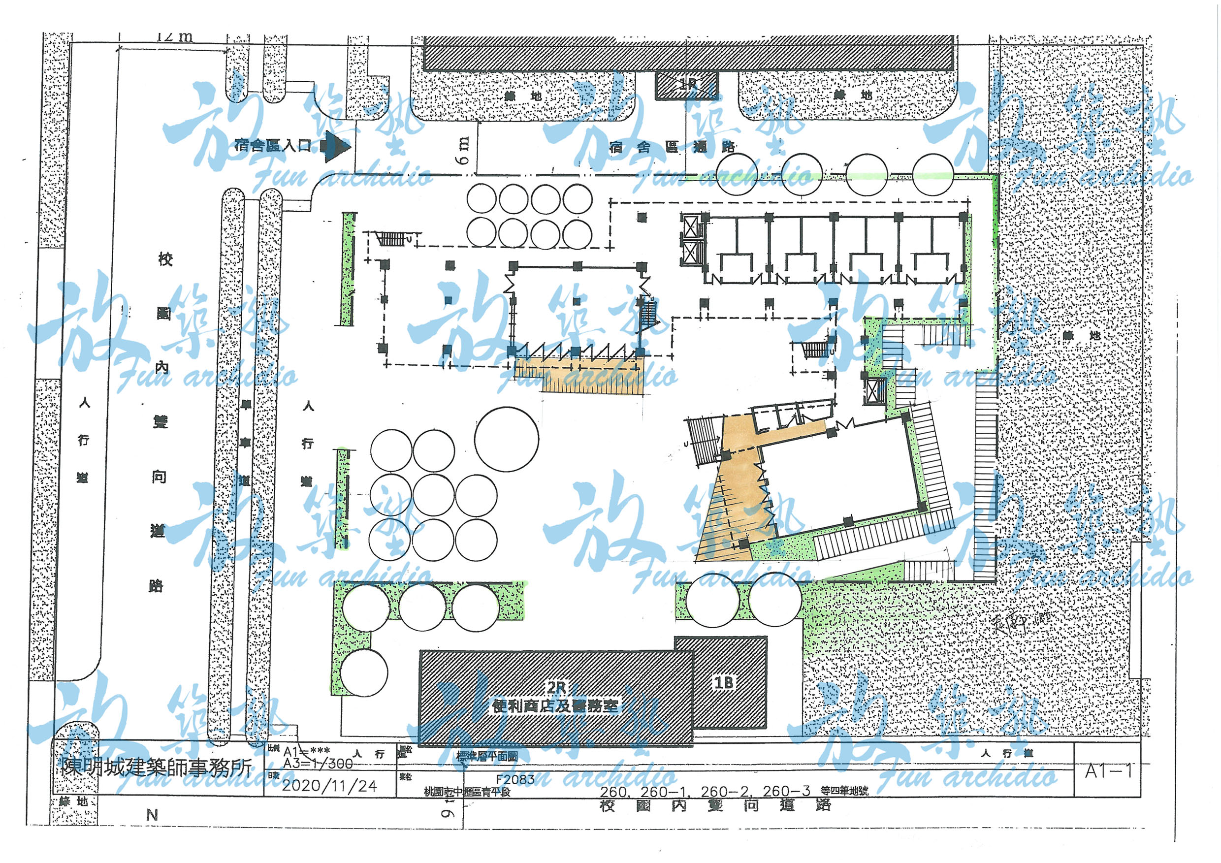
109專技建築師 設計 試解

注意

南北向配置
宿舍 公共空間 誇距不同

整合南側小7+醫務室
圍封南向 埕 活動開放空間
附加檔案
109_建(設)-8-3_2F-3.jpg
2F
SITE-8-3拷貝.jpg
配置
頭像
陳明城
 
文章: 3245
註冊時間: 2009 2月 21 (週六) 8:04 pm
來自: 板橋‧府中


回到 建築考試


cron